Zigong Zhaoqiang Sealing Products Industrial Co., Ltd.

ختم مضخة LSHR

نطاقات تطبيق

متوسطة: الجص سيريفلوكس ، لب الملح ، مياه الصرف الصحي ، إلخ.

التركيز: ≤ من

الضغط:>> MPa

درجة الحرارة:> ~ ℃

السرعة الخطية: أقل من 10

الحصول على عرض أسعار
الفئة: الأختام الميكانيكية للمضخات
  • ميزات هيكل الأختام الميكانيكية LSHR للمضخات

    1. تصميم الختم الميكانيكي يشتمل على وجه واحد ، هيكل منزلق ، يتم تمكينه بواسطة أقراص مستديرة مدمجة. يحمي هذا التكوين الختم الميكانيكي من التعديلات المحورية التي تم إجراؤها على المضخة أثناء التثبيت ، وبالتالي الحفاظ على سلامة ضغطها.

    2. لمنع تراكم اللب حول سطح الختم ، مما قد يجعل الختم الميكانيكي غير فعال ، من الضروري الحفاظ على أقصى قدر من الانفتاح في كل من تجويف الختم ولوحة الذيل.

    3. عن طريق الاتصال بمنفذ التنظيف العلوي ، يمكن استخدام مياه الصنبور بشكل متقطع لطرد النظام ، اعتمادًا على الظروف السائدة. الهدف هو القضاء على أي تسرب محتمل عن طريق الشطف حتى يتم تحقيق حالة نظيفة.

    4. للحصول على إرشادات مفصلة حول اختيار المواد ، نوصي باستشارة Zigong Zhaoqiang منتجات مانعة للتسرب الصناعية ، Ltd.

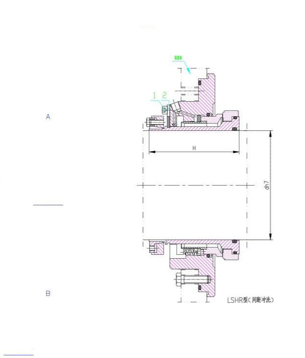
  • مخطط الأختام الميكانيكية LSHR للمضخات

    Diagram of LSHR Mechanical Seals For Pumps

  • اتجاهات الأختام الميكانيكية LSHR للمضخات

    1. يجب تطبيق مادة التشحيم على الفتحة الداخلية لجلبة العمود وحلقة دائرية أثناء التثبيت لضمان التركيب السلس.

    2. قبل بدء تشغيل الماكينة ، يجب إزالة مسامير غطاء المقبس السداسي 1 وتحديد موقع الكتلة 2 بعد التأكد من التثبيت الصحيح للختم الميكانيكي.

    3. يمكن استخدام مياه الصنبور العادية كماء تنظيف خارجي ، مع ضغط محدود إلى $ MPa ، يكفي للحفاظ على معدل تدفق عام.

    ملاحظة:

    1. هذا الختم الميكانيكي لهذا الهيكل قابل للتطبيق لمضخة الدوران من سيريفلوكس 600X-TL ، 700X-TL ، 800X-TL لإزالة الكبريت لمجموعة صناعة المضخات في شيجياتشوانغ كينغدا ، المحدودة.

    2. للمساعدة في اختيار نموذج الختم الميكانيكي المناسب ، يرجى الرجوع إلى منتجات الختم الصناعية Zigong Zhaoqiang Co. ، Ltd. اتصل بالبريد الإلكتروني:

احصل على كتالوج وأفضل سعر